Overview

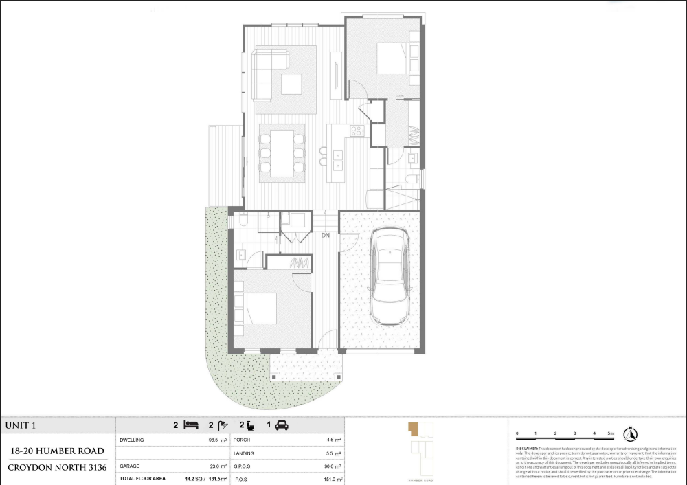
18-20 Humber Road, Croydon North ext
  • Status Under Construction
  • Location 18-20 Humber Road, Croydon North
  • Type Independent
  • Bed2
  • Bath2
  • Parking1

Gallery

Location

Address

18-20 Humber Road, Croydon North 3136

Enquiry